Manas Kouzina Kouzina /completed
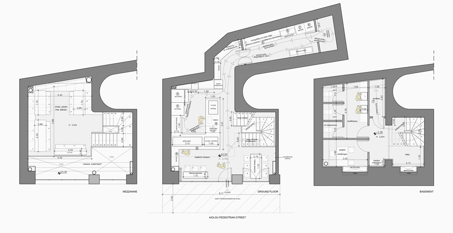
‘Manas Kouzina-Kouzina’ is located on the ground floor of the abandoned for decades though recently restorated neoclassical hotel ‘Emporikon’ on Agias Eirinis square in the center of Athens.
The startup idea was to create a new age restaurant/deli with references and flavors deriving from the Greek heritage, the old Greek domestic kitchen, the old restaurants and delis of the 50s and the 60s, the collectivity of the monastery long dining tables and the warming hospitality of an impulsive and sincere, lived space.
The architectural design process, focused mainly on the continuing dialogue between the new and the old, the contemporary and the traditional. A decision propelled from the need to maintain the quality and the ‘memories’ of the building. At the same time, proper infrastructure was installed respecting the existing spatial quality, in order to line up with the modern demands.
Design
Athens Creative
Project Team
Alexandros Avlonitis
Location
Athens, Greece
Lighting Design
Athanasios Danilof
Date
2013

