Vermantia New HQ / proposal
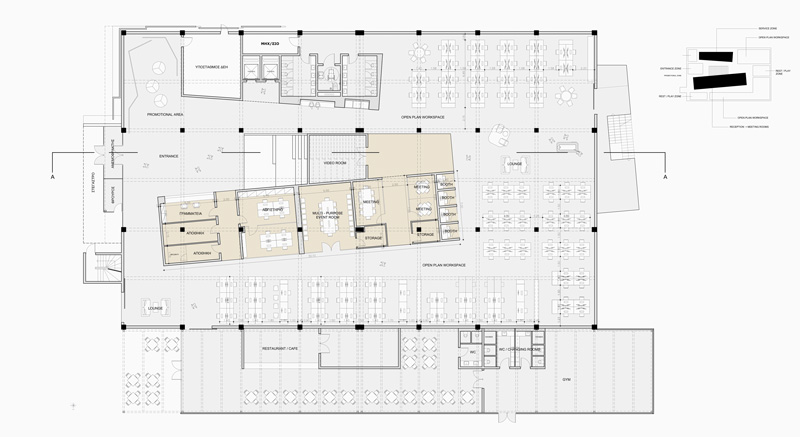
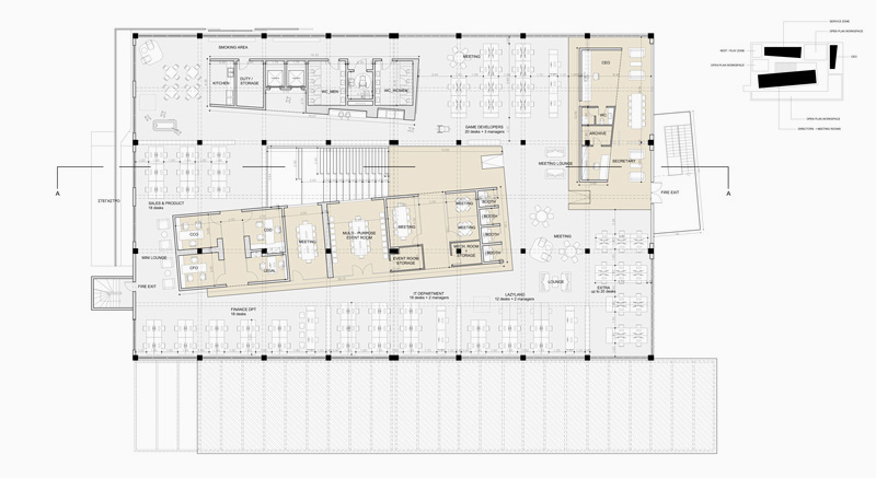
Τhe starting idea was to preserve and emerge the industrial character of the building. Exploiting the big open space and the double height, the proposal organizes all the C level offices and meeting rooms in closed free standing wooden boxes placed at the center while the rest of the offices are installed in diverse open space groups .
The new central staircase works as an amphitheater and a double height patio at the same time.
Design
Athens Creative & Oval Studio
Project Team
Aggeliki Anagnostopoulou, Alexandros Avlonitis, Dimitris Zoupas
Client
Vermantia
Date
2015
Status
Building Permit

